Delen
Aanbieder
Kantoor
Makelaar
Algemeen
Te koop gelegen aan de Dennelaan 23 te Rijswijk ZH, rustige en groene straat,
prachtig 3 kamer begane grond appartement van ca. 62m2, de woning heeft energielabel D,
met aan de voorzijde de woonkamer en aan de achterzijde de openkeuken met toegang tot de achtertuin.
Heerlijk ontbijten in de zonnige achtertuin op het Zuiden met woon/werkruimte van ca.21 mtr2, met achterom.
Hip wonen in Ri... Meer informatie
prachtig 3 kamer begane grond appartement van ca. 62m2, de woning heeft energielabel D,
met aan de voorzijde de woonkamer en aan de achterzijde de openkeuken met toegang tot de achtertuin.
Heerlijk ontbijten in de zonnige achtertuin op het Zuiden met woon/werkruimte van ca.21 mtr2, met achterom.
Hip wonen in Ri... Meer informatie
| Kenmerken | |
|---|---|
| Alle kenmerken | |
| Type object | Appartement, benedenwoning |
| Bouwperiode | 1931 |
| Status | Nieuw in verkoop |
| Aangeboden sinds | Dinsdag 28 april 2026 |
Kenmerken
| Overdracht | |
|---|---|
| Referentienummer | 00163 |
| Vraagprijs | € 350.000,- k.k. |
| Servicekosten | € 50,- |
| Elektra | € 70,- |
| Gas | € 70,- |
| Water | € 17,- |
| Status | Nieuw in verkoop |
| Aanvaarding | In overleg |
| Aangeboden sinds | Dinsdag 28 april 2026 |
| Bouw | |
|---|---|
| Type object | Appartement, benedenwoning |
| Woonlaag | 1e woonlaag |
| Soort bouw | Bestaande bouw |
| Toegankelijkheid | Senioren |
| Bouwperiode | 1931 |
| Dakbedekking | Dakpannen |
| Type dak | Dwarskap |
| Keurmerken | Energie prestatie advies |
| Isolatievormen | Dubbel glas |
| Oppervlaktes en inhoud | |
|---|---|
| Perceeloppervlakte | 93,6 m² |
| Woonoppervlakte | 61,9 m² |
| Woonkameroppervlakte | 24,39 m² |
| Keukenoppervlakte | 10,08 m² |
| Inhoud | 334 m³ |
| Oppervlakte overige inpandige ruimten | 11 m² |
| Oppervlakte externe bergruimte | 20,7 m² |
| Indeling | |
|---|---|
| Aantal bouwlagen | 2 |
| Aantal kamers | 3 (waarvan 1 slaapkamer) |
| Aantal badkamers | 1 (en 1 apart toilet) |
| Locatie | |
|---|---|
| Ligging | Aan rustige weg Dichtbij openbaar vervoer In woonwijk |
| Tuin | |
|---|---|
| Type | Achtertuin |
| Hoofdtuin | Ja |
| Oriëntering | Zuiden |
| Heeft een achterom | Ja |
| Staat | Aangelegd onder architectuur |
| Energieverbruik | |
|---|---|
| Energielabel | D |
| CV ketel | |
|---|---|
| CV ketel | Bosch HR |
| Warmtebron | Gas |
| Bouwjaar | 2010 |
| Combiketel | Ja |
| Eigendom | Eigendom |
| Uitrusting | |
|---|---|
| Warm water | CV-ketel |
| Verwarmingssysteem | Centrale verwarming |
| Ventilatie methode | Mechanische ventilatie Natuurlijke ventilatie |
| Badkamervoorzieningen | Inloopdouche Wastafelmeubel |
| Heeft kabel-tv | Ja |
| Heeft een rookkanaal | Ja |
| Tuin aanwezig | Ja |
| Beschikt over een internetverbinding | Ja |
| Heeft schuur/berging | Ja |
| Heeft ventilatie | Ja |
| Vereniging van Eigenaren | |
|---|---|
| Ingeschreven bij de KvK | Ja |
| Jaarlijkse vergadering | Ja |
| Periodieke bijdrage | Ja |
| Reservefonds | Ja |
| Opstal verzekering | Ja |
| Kadastrale gegevens | |
|---|---|
| Kadastrale aanduiding | Rijswijk D 7146 |
| Perceeloppervlakte | 200 m² |
| Omvang | Appartementsrecht of complex |
| Eigendomsituatie | Eigen grond |
| Indexnummer | A1 |
Beschrijving
Te koop gelegen aan de Dennelaan 23 te Rijswijk ZH, rustige en groene straat,
prachtig 3 kamer begane grond appartement van ca. 62m2, de woning heeft energielabel D,
met aan de voorzijde de woonkamer en aan de achterzijde de openkeuken met toegang tot de achtertuin.
Heerlijk ontbijten in de zonnige achtertuin op het Zuiden met woon/werkruimte van ca.21 mtr2, met achterom.
Hip wonen in Rijswijk Zuid Holland, in het fraaie Rembrandtkwartier. een kind vriendelijke buurt met veel voorzieningen zoals,
het oude centrum van Rijswijk, supermarkt, treinstation en nabijheid van de uitvalswegen.
prachtig 3 kamer begane grond appartement van ca. 62m2, de woning heeft energielabel D,
met aan de voorzijde de woonkamer en aan de achterzijde de openkeuken met toegang tot de achtertuin.
Heerlijk ontbijten in de zonnige achtertuin op het Zuiden met woon/werkruimte van ca.21 mtr2, met achterom.
Hip wonen in Rijswijk Zuid Holland, in het fraaie Rembrandtkwartier. een kind vriendelijke buurt met veel voorzieningen zoals,
het oude centrum van Rijswijk, supermarkt, treinstation en nabijheid van de uitvalswegen.
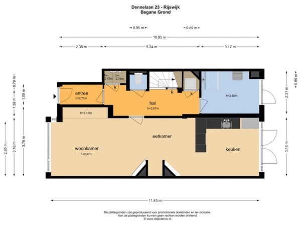
Indeling
Via de onderhoudsarme voortuin entree woning, ruime hal met toegang tot toilet, trapopgang naar de opkamer/slaapkamer,
natte ruimte wasmachine en droger, en de achtergelegen ruime badkamer met inloopdouche,
vaste wastafel en CV ketel en deur naar het terras.
Deur naar gezellige woonkamer met ruime eetkamer en open keuken met diverse inbouw apparatuur en kookeiland,
met toegang middels dubbele deuren naar de achtertuin en woon/werkruimte met overkapping en achterom.
natte ruimte wasmachine en droger, en de achtergelegen ruime badkamer met inloopdouche,
vaste wastafel en CV ketel en deur naar het terras.
Deur naar gezellige woonkamer met ruime eetkamer en open keuken met diverse inbouw apparatuur en kookeiland,
met toegang middels dubbele deuren naar de achtertuin en woon/werkruimte met overkapping en achterom.
Eerste verdieping
Opkamer slaapkamer van ca.11 mtr2.
Tuin
Ruime zeer goed onderhouden achtertuin op het zuiden,
en onderhoud arme voortuin op het westen.
en onderhoud arme voortuin op het westen.
Bijzonderheden
Woonoppervlak ca.72 m2
Begane grond woning met voor en achtertuin
Keuken en badkamer met toegang tot de achtertuin
Opkamer/slaapkamer middels trapopgang
Actieve VvE met een maandelijkse bijdrage van € 50,00
Woon/werkruimte met overkapping in de achtertuin met achterom
Kozijn aan de achterzijde open slaande deuren dient hersteld/ vervangen te worden.
Begane grond woning met voor en achtertuin
Keuken en badkamer met toegang tot de achtertuin
Opkamer/slaapkamer middels trapopgang
Actieve VvE met een maandelijkse bijdrage van € 50,00
Woon/werkruimte met overkapping in de achtertuin met achterom
Kozijn aan de achterzijde open slaande deuren dient hersteld/ vervangen te worden.
Social
Vind ons leuk op Facebook
Volg ons op Twitter
LinkedIn webpagina